Доступная среда - Копенгагенский метрополитен, Копенгаген, Дания
Кратко об объекте
Копенгагенский метрополитен
Копенгаген, Дания
- новое строительство
- Завершено - в 2002
- Финансирование - государственное
Введение
Международная конференция по метрополитенам в 2008 году. назвала копенгагенский метрополитен лучшей сетью метро в мире. Он был отмечен за высокий уровень стабильности и безопасности системы и удовлетворенности пассажиров. Копенгагенский метрополитен, который открылся в октябре 2002 г. поднял технологии легкорельсового транспорта и метрополитена на новый уровень. В 2007 г. была проложена новая линия, по которой можно добраться из аэропорта до центра города за 15 минут. Кроме того, сеть метрополитена выступает примером Доступной среды и инклюзивного дизайна во всем - от дизайна помещений станций и подвижного состава к применению дружественных пользователям высокотехнологичных систем. Здесь можно приобрести проездной билет с помощью SMS-сообщения или ехать на полностью автоматическом поезде без машиниста. Переходы на станциях до подъемного транспорта не имеют барьеров, а комфортабельные поезда добавляют чувство надежности. Копенгаген планирует открыть новые линии до 2018 г. Общая стоимость строительства составит 4 500 000 000. долл. США.
Описание
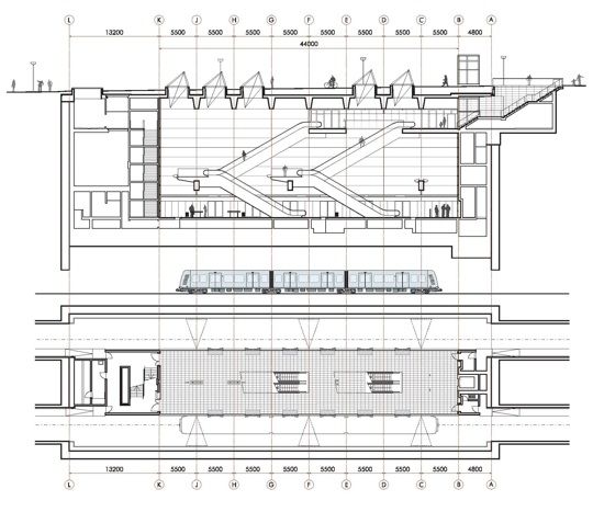
В начале 1990-х гг. бывший мэр Копенгагена Йенс Крамер Миккельсен (Jens Kramer Mikkelsen) поставил задачу создать новый район города под названием Орестад, который должен был быть расположен на острове Амагер. Успех этого дела зависел от современной системы общественного транспорта, по дизайну и функциональности должен превосходить старую ширококолейную пригородную железнодорожную сеть. Новая сеть должна частично заменить старую. Учитывая неизбежность высоких расходов на инвестирование в инфраструктуру, новое метро также должно было решить проблемы с дорожным движением и предложить надежную альтернативу, которая отвечала бы принципам экологической устойчивости. В 1993 г. для наблюдения за развитием сети метрополитена была создана Корпорация по развитию Орестад, 55% которой принадлежало муниципальной власти Копенгагена, а остальные 45% - правительству Дании. Общее руководство проекта и проведение специальных консультаций с строительных работ было поручено «КОВИ» (COWI) - большой инженерной и проектировочной датской компании. Были также избраны специальные консультанты по вопросам подвижного состава, железнодорожных сетей, транспортного движения, архитектурного и городского планирования. В 2009 г. развитая сеть метро обслуживалась 34 поездами и состояла из 22 станций (9 подземных и 13 наземных или надземных), расположенных по всему городу. Общая протяженность линий составляла 21,5 км. Станции сосредоточены в центре и жилых районах города. Большинство пассажиров начинают свой путь из дома пешком или на велосипедах. Все станции имеют достаточное количество мест для стоянки велосипедов, а стандартный проект станции предусматривает наличие лифта, лестницы и эскалаторов. Все станции и поезда спроектированы универсально и имеют достаточное пространство для пассажиров с велосипедами, инвалидными или детскими колясками. Все чувствуют преимущество того, что зазор между вагоном и платформой составляет лишь 5,5 см. Сиденья в вагоне соединены непосредственно со стенами, что делает их содержание и чистку легче. В каждом вагоне предусмотрено достаточно места для багажа. С учетом потребностей людей со слабым зрением перила четко обозначены контрастными цветами (преимущественно ярко желтым). Сиденья также окрашенны и контрастируют со стенами вагонов. Панели связи также отличаются яркими контрастными цветами - красные и зеленые кнопки на желтом фоне. Панели связи используются большим количеством пассажиров всех возрастов: как людьми с инвалидностью, так и без функциональных ограничений. С момента запуска большинство пассажиров оценивали метро как комфортный, надежный, безопасный и легкий в использовании вид транспорта. Интервал движения между поездами составляет меньше трёх минут, максимальная скорость движения - 82 км / ч. За счет этих факторов метро пользуется большой популярностью среди широкого круга пассажиров.
Доступная среда и опыт пользователей
Датская архитектурная компания «Кей-Эйч-Ар Аркитектер» (KHR Arkitekter A / S) вместе с бюро «Карл Бро Дизайн» (Carl Bro Design) спроектировали большинство станций метро, а бюро «Джьюджьяро Дизайн» занималось проектированием поездов. Основными материалами, которые использовались при строительстве, были сталь, стекло и гранит. Нестареющий и выразительный, минималистичный и функциональный скандинавский дизайн проявляется в прямых линиях, гладких поверхностях и светло-серых тонах. Элементы элегантного итальянского дизайна дополняют великолепно функциональный датский дизайн.
По нижеследующим ссылкам можно ознакомиться с подробным описанием роли пользователей и реализации принципов Доступной среды и инклюзивного дизайна при создании Копенгагенского метрополитена (англ.
инициативы «Дизайн для всей Европы», страница «Копенгагенский метрополитен дизайн для всех - необходимость, которая обязывает к прозрачности», Карин Бендиксен, Корпорация по развитию Орестад). В основу строительства и проектирования нового Копенгагенского метрополитена были положены результаты тестирования пользователей. Постоянное внимание в этом процессе сосредоточивалась на потребностях пассажиров. Необходимо было, чтобы люди, которые самостоятельно обходятся в повседневной жизни, могли так же это делать и в метрополитене: в поездах, на платформах и станциях.
«Люди с функциональными ограничениями должны получить возможность, насколько это вообще возможно, пользоваться метро без посторонней помощи, - подчеркнул Мортен Сондергаард, менеджер проекта Корпорации по развитию Орестад. - Проект стоимостью в 1 млрд. датских крон должен обеспечить скорость и надежность передвижения жителям Копенгагена с 2002 г».
Никаких дополнительных расходов
«Подход не требует дополнительных расходов. Конечно, если заниматься этим с самого начала. Поэтому мы уже на ранней стадии проекта привлекли иностранных поставщиков, чтобы интегрировать технические требования и пожелания пользователей с самого начала», - говорит Мортен Сондергаард. Он также характеризует тесное сотрудничество между дизайнерами, техниками, архитекторами и, не в последнюю очередь, пользователями, как «оптимальное соотношение между проектировочной и технической частями работы». К иностранным поставщикам относятся итальянские производители поездов «Ансальдо Транспорт», которые в тесном сотрудничестве с бюро «Джьюджьяро Дизайн» изготовили поезда для копенгагенского метро. Датская компания «Карл Бро Дизайн» создала основные макеты перед тем, как к делу взялись итальянские коллеги.
Тестирование с участием пассажиров
До проведения тендера для подписания контракта Корпорация по развитию Орестад провела консультации с некоторыми датскими организациями людей с инвалидностью. В это время бюро «Карл Бро Дизайн» проводило различные виды тестирования с участием пассажиров. Дизайн поездов - не новое дело для «Карл Бро Дизайн», поскольку это бюро уже проектировало датский поезд IC3 и новый копенгагенский поезд для пригородных сообщений.
«Мы хотели уточнить такие элементы, как ширина дверей, размер сидений, их расположение, принципы конструкции и расположение ручек и поручней до того, как начнется тендер на подписание контракта», - отметил Мортен Сондергаард.
Участие в тестах приняли пассажиры с детскими колясками, велосипедами, багажом, детьми, люди с ограничениями зрения, пользователи инвалидных колясок, лица с ограниченной подвижностью и ограничениями слуха. Результаты тестов и технические характеристики позволили создать простые эскизы и схемы, которые были включены в документы контракта.
На более поздней стадии бюро «Джьюджьяро Дизайн» создало полномасштабную модель для проведения тестов на удобство посадки и высадки, определения моделей движения и размещения ручек в вагоне. В то время существовала возможность проверить различные идеи относительно технических решений, сравнить функциональность и оценить эстетичность, а также определить соответствующие методы уборки и поддержания состояния поездов.
Оценка
Администрация метрополитена ежеквартально проводит опрос удовлетворенности пользователей. Цель состоит в том, чтобы довольными были по крайней мере 80% пользователей, и одно из последних опросов показал, что 98% или «довольны» или «очень довольны» метрополитеном. Об удовлетворенности метро свидетельствует и увеличение количества пассажиров: количество поездок выросло с 3 300 000 в 2002 г до 40 000 000 в 2007г.
Дизайну метро соответствует очень важная задача - создать безопасные условия в поездах и на станциях и обезопасить пассажиров от несчастных случаев. Не важно, спускаетесь ли Вы вниз по лестнице, эскалатором или с помощью стеклянного лифта, Вы будете иметь одинаково хороший вид на станцию и людей, ожидающих поезд. Пол, освещаемой лампами в форме призм, расположенными вдоль станций, и покрытых алюминием, отражающие естественный свет вдоль всего спуска к метро, создают ощущение защищенности и контроля. Все станции оборудованы системами видеонаблюдения, а в большинстве поездов есть стюарды. Платформы также были разработаны для повышения безопасности. Платформа отделена от поездов и рельсов автоматическими стеклянными раздвижными дверями. Они созданы для безопасности людей со слабым зрением и для предотвращения падений и прыжков на рельсы. Кроме того, стеклянные раздвижные двери улучшают климат в помещении станции.
Администрация метрополитена очень сознательно подходит к вопросам окружающей среды и роли метрополитена в повышении качества жизни в Копенгагене. С помощью журнала «Metro News» они постоянно поощряют пассажиров выражать свои идеи по улучшению метро. Лучшие идеи включаются в стратегии развития администрации. Журнал также служит форумом для комментариев и вопросов пользователей метро и для предоставления информации о метро и событиях в Копенгагене.
Хотя большинство пассажиров довольны метрополитеном и его различными специальными элементами, некоторые выражают определенные критические замечания. Для многих пассажиров проблемой является долгое время ожидания ответа стюарда на запрос пассажира через систему связи. Лифты на станциях часто не работают из-за вандализма и износа. Некоторые пассажиры считают что сиденья малы, а некоторые высказывают мнение, что нужно сделать больше поручней для тех, кто стоит в центре вагона. Также во время поездки в Копенгагенский аэропорт иностранные пассажиры из-за тихих динамиков не всегда понимали, на какой станции им нужно выходить. Кроме того, многие пассажиры, которые ежедневно пользуются лифтами, жалуются, что на каждой станции построен только один лифт.
Элементы Доступной среды
- Полностью автоматизированные поезда без машинистов.
- Свободный доступ к поездам (зазор между поездом и платформой составляет лишь 5,5 см).
- На платформах и в вагонах предоставляется аудио-информация.
- Тактильное маркировки / направляющие линии и точки связи перед входом и на станциях.
- Визуальное маркировки лестницы и переднего края платформы.
- Двери на передних краях платформ станций.
- Кроме сидений, есть дополнительные складные стулья, которые не занимают много места на станциях.
- Специальные тихие динамики для незрячих и людей со слабым зрением, заменяющие таблички с текстом.
- Пассажиры могут купить билет в метро через SMS-сообщения.
- Высокая контрастность цветов различных элементов вагона.
- Достаточное место в вагонах для велосипедов, детских и инвалидных колясок.
Элементы экологической устойчивости
- Туннели были построены на склонах, поэтому поезда экономят энергию за счет ускорения вниз.
- Энергия, выделяющаяся при торможении, преобразуется в электрическую и используется другими поездами.
- Высокий уровень освещения. Естественный свет, поступающий на станции сверху, создает яркe., безопасную и комфортную среду. В то же время, это снижает необходимость использования электрического и искусственного освещения.
- Для искусственного освещения используются лампы с низким уровнем энергопотребления.
- Бумажки, которые остаются в вагонах, постоянно собираются и отправляются на переработку.
- Для предотвращения использования пестицидов сорняки на дорогах удаляются механически.
- При мытье поездов используются только экологически чистые моющие средства.
Вода для мытья поездов используется повторно для уменьшения ее потребления.
Опыт сотрудников нашей компании позволяет правильно оценить потребности, подобрать оборудование по программе Доступная среда и разработать проект по Доступной среде, дать рекомендации, проконсультировать, ответить на Ваши вопросы. Мы проектируем и реализовываем комплексные решения с учетом разумной стоимости и безопасности, учитывая все Ваши пожелания и требования, в соответствии с ГОСТом и СанПиНом







