Доступная среда - Комплекс Casa del Jazz, Италия
Кратко об объекте
В переводе - «Дом джаза»
Рим, Италия
- реконструкция
- Завершена в 2005
- Финансирование - государственное
Введение
21 апреля 2005, в День города, который праздновали в Риме 2758-й раз, газета «Нью-Йорк Таймс» сообщила о грандиозном открытии в центре Рима комплекса «Casa Del Jazz». Перестроенное имение на Виа ди Порта Адеатина расположенно среди густых сосновых деревьев у Стены Аврелиана. В прежние времена оно было в собственности Энрико Николетти, по слухам, босса мафии. Мэр и большой поклонник джазовой музыки Вальтер Вентрони лично способствовал финансированию реставрации этого комплекса для использования в новом качестве. За счет этого общественность смогла снова пользоваться этой важным, хотя и в известной степени печально, сооружением.
Описание
В прошлом «Casa del Jazz» была усадьбой известного представителя римского уголовного мира. Когда она в конце концов была конфискована государством, городская администрация Рима доверила реконструкцию особняка (три этажа общей площадью 1200 квадратных метра), двух меньших сооружений и 25,240 квадратных метров (6,281 акров) зеленых насаждений культурному фонду «Zetema». Эти объекты сейчас находятся в собственности «Azienda Speciale Palaexpo» - влиятельной художественной организации, контролируемой городской администрацией Рима.
«Casa del Jazz» расположена недалеко от форта Сангалло, так с ее территории можно увидеть руины «Augusteo auditorium», а также ряд археологических памятников вдоль периферии усадьбы. Перед 1930-и гг., когда этот комплекс был возведен, в Риме была принята новая концепция городской застройки, в результате чего некоторые здания разбирались, а их материалы использовались для нового строительства. Некоторые из них были использованы при возведении «Casa del Jazz», за счет чего усадьба стилистически подобна окружающей застройке. Ее архитектором стал Чезаре Пасколетти.
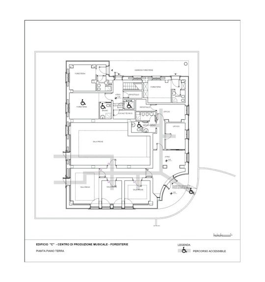
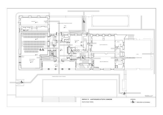
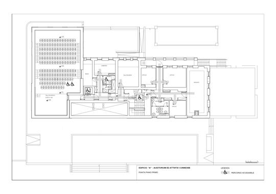
На первом этаже главного здания располагаются концертный зал, книжный магазин, библиотеки аудиозаписей и публикаций, кафетерий и общественные уборные. Две большие террасы с каждой стороны здания увеличивают пространство для приема посетителей. На втором этаже находятся студии для записи репетиций и прослушиваний. Люди, которые не могут подняться к ним по лестнице, пользуются лифтом.
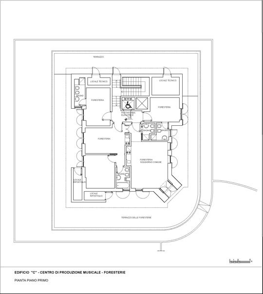
Отдельное здание, в котором находится Центр музыкального творчества ( «Center forMusicProduction»), расположен примерно в 76 метрах позади главного здания. На территории поместья проложена узкая гравийная дорога, соединяющая здания между собой. Дорога достаточно широкая для проезда машин.Посетители могут отдохнуть на скамейках, расположенных на определенном расстоянии друг от друга. Внутри центра предусмотрены места для проведения репетиций и занятий, а также помещения для приезжих музыкантов, включая жилые номера и пространство для общего пользования.
Доступная среда: опыт пользователей
Большинство людей приезжают в «Casa del Jazz» на собственных машинах, поскольку добраться до него на общественном транспорте довольно трудно. В «Azienda Speciale Palaexpo» надеются, что альтернативным вариантом станут трансферные перевозки. Также они планируют ввести новую систему знаков, что облегчит нахождение пути посетителями с проблемами зрения.
В главном здании размещены книжный магазин, библиотека и мультимедийный архив. Они были разработаны для того, чтобы всем посетителям было удобно пользоваться ими. Долгое прямоугольное помещение магазина имеет простое планирование, а на каждой его стене установлены мониторы. На средних по высоте и слегка отодвинутых полках разложены книги и музыкальные записи.
Дизайн мультимедийного архива и библиотеки был разработан таким образом, чтобы гармонично вписываться в общее пространство. Пользователи библиотеки могут работать за большим столом в центре или по одному из читательских кресел. Фонд библиотеки выставлен за стеклом по периметру комнаты, что облегчает поиск и нахождение необходимого труда. В мультимедийном архиве вдоль всей комнаты установлены столы для настольных компьютеров, каждый из которых подсоединен к базе данных.
Зрительный зал на 146 мест разделен на две части, каждая из которых имеет выход на террасу, а также специальные места для инвалидных колясок в первых двух рядах. Разделяет две части зала проход, достаточно широкий для того, чтобы зрители могли проходить по нему на свои места. Он также выполняет и функцию поддержания безопасности, поскольку ведет к одному из трех выходов из зала.
Для создания сбалансированной акустики стены и потолок оснащены буковыми панелями и имеют свойство отражать звуки. Новейшая аудиосистема еще более усиливает акустические эффекты. Кроме того, она позволяет подстраиваться под нужды исполнителей и слушателей. Прекрасная акустика также дает возможность делать записи выступлений для их дальнейшего распространения.
Другим примером использования технологий в дизайне является освещение. Вместо того, что проектировать концертный зал в закрытом помещении, где освещение контролируется исключительно соответствующим оборудованием, в этом здании было предусмотрено три башенных окна над сценой на юго-восточной стене. Наличие окон и естественного освещения не только приятно для зрения, поскольку соединяет помещения с внешним светом и подчеркивает мягкие тона буковых панелей, но также выступает хорошей альтернативой искусственному освещению сцены.
В летнее время ряд спектаклей проводятся под открытым небом. Хотя в таких выступлениях необходима тщательная подготовка (большая сцена, впечатляющая аудиосистема и сложная система освещения), свободное размещение зрительских мест на природе может создавать для посетителей определенные трудности в том, чтобы добраться до своего места. Этот вопрос также актуален для тех мест в парке, где была положена мелкая галька, что затрудняет проход для людей с проблемами движения.
Оценка
«Casa del Jazz» является примером того, как дизайнерская фирма может отходить от первоначального плана для использования пользовательского опыта. На входе в имение есть некоторые элементы, которые многим напоминают оригинальный дизайн архитектора Пасколетти: так, например, травертиновая рампа, которая ведет посетителей к главному входу, полностью гармонирует с террасой и крыльцом. Построенные вокруг здания бордюры также похожие по стилю на дорогу, но в этом случае желательно было бы сделать более похожими на вид и на ощупь. В то время как внимание концентрируется на архитектуре гранитного пандуса, маленькие бордюры кажутся менее заметными.
Здание концертного зала подходит для проведения выступлений для широкой общественности, необязательно музыкальных. Его размер позволяет хранить уют кофейни, одновременно обеспечивая любителям симфонической музыки и музыкантам все преимущества профессиональных концертных помещений.Приветствуются новые возможности для размещения людей, пользующихся инвалидными колясками.
Пока не будет запущена система трансферных перевозок или найдены возможности общественного транспортировки, будет существовать проблема перевозки посетителей к комплексу и из него. Если этого не сделать, цели организации по повышению осведомленности общественности с джазовой музыкой удастся достичь лишь частично.
Элементы Доступной среды
- Во многих случаях новые построенные элементы, направленные на повышение доступности в пользовании комплексом, стилистически напоминают работу первого архитектора Чекарь Пасколетти.
- Мультимедийные библиотеки и магазин спроектированы для интуитивного использования. Большинство элементов коллекции выставлены на полках, которые находятся в пределах досягаемости. Поэтому в любом помещении пользователь может получить большую часть информации (если не всю), что значительно упрощает ориентирование.
- Акустическая система концертного зала обеспечивает высокое качество звучания для различных уровней слуховых способностей.
- Найти нужный путь в главном здании просто за счет обозначений и перекрытий, отделяющих доступны для входа помещения от недоступных.Посетителям, которым необходима механическая помощь при подъеме или спуске с лестницы, не нужно искать альтернативные пути: лестничные подъемники были установлены там, где изменения в высоте пола не слишком большие, а рядом с лестницей находятся лифты.
- За пределами здания гости могут прогуливаться четко обозначенными дорожками, которые хорошо освещены даже вечером. Также есть много скамеек.
Опыт сотрудников нашей компании позволяет правильно оценить потребности, подобрать оборудование по программе Доступная среда и разработать проект по Доступной среде, дать рекомендации, проконсультировать, ответить на Ваши вопросы. Мы проектируем и реализовываем комплексные решения с учетом разумной стоимости и безопасности, учитывая все Ваши пожелания и требования, в соответствии с ГОСТом и СанПиНом














