Доступная среда - Центр драматического искусства Уэслианского университета, США
Кратко об объекте
Центр драматического искусства Уэслианского университета
Миддлтаун, штат Коннектикут, США.
Введение
Уэслианский университет был основан в 1831 году в качестве гуманитарного колледжа. Проект предусматривает адаптивное повторное использование двух его старых зданий. Сейчас университетский кампус, расположенный в Новой Англии вдоль реки Коннектикут, имеет площадь в 1,457 км 2 (360 акров), на которой находятся более 340 зданий. Количество студентов примерно составляет 3000 человек, количество преподавателей - 300. В рамках проекта предполагается создание центра драматических искусств в студенческом городке. Перед архитекторами стояла задача, как разместить новое здание таким образом, чтобы оно не препятствовало проходу сквозь эту территорию к домам и имела главные входы как с стороны исторических объектов, так и с современной стороны кампуса, сохраняя при этом целостность исторических ресурсов.
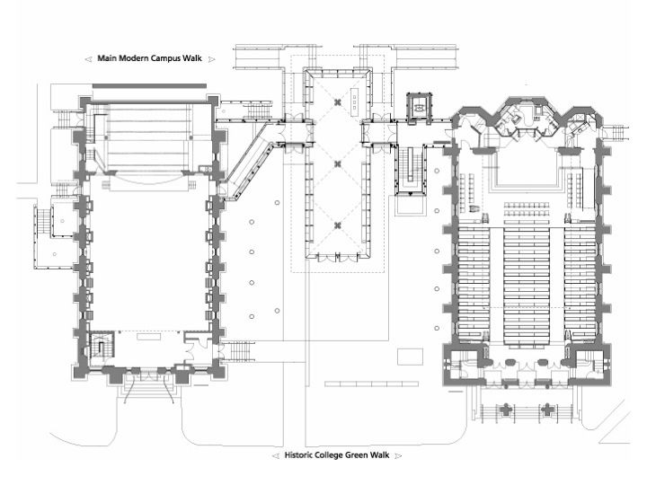
Комплекс состоит из мемориальной часовни, которая теперь является помещением для хоровой, органной и оркестровой музыки, лекций и религиозных служб и имеет 620 мест; театр «Патричеллиь» (бывший «Rich Hall») и экспериментальный театр на 150 зрителей. В новом павильоне «Zelnick» расположен вестибюль для обоих зданий, административные помещения для систем обслуживания аудитории и сооружений, сквозь него также открывается проход к мемориальной часовни и театра «Патричеллиь». Проект предусматривал полное восстановление обоих исторических сооружений, которые были первыми зданиями Уэслианского университета, включая оригинальную крышу из черепицы, реконструкцию самого здания, замену прежних окон и дверей и сохранение витражей.
Описание
Первый этап работы начался в 1998 году с изучения студенческого городка. «Роберт Ольсон и партнеры» рассматривали варианты омоложения исторического ядра кампуса для создания новых центров общественного и студенческой жизни. Они провели оценку исторических зданий и ландшафтных ресурсов университета и в детальных консультациях с университетской общественностью разработали программу и пути использования центра кампуса, стратегию адаптации исторических сооружений для выполнения новых функций и концептуальные решения по проектированию. Решение состояло из двух частей: развитие студенческого центра в северной части центра кампуса, реставрация и обновление мемориальной часовни и театра «Патричеллиь».
«Роберт Ольсон и партнеры» сделали перепланировку мемориальной часовни таким образом, чтобы обеспечить максимальную гибкость в ее использовании. Новое помещение может использоваться для богослужений разных конфессий, и для общеуниверситетских собраний, лекций, показов фильмов и других выступлений. Архитекторы восстановили облик часовни как молитвенного дома путем переоборудования верхней галереи, установили новый орган и создали место для молитвы, которое полностью удовлетворяет интересам сообщества и учитывает принципы доступной среды и универсального дизайна.
Они перестроили мемориальную часовню, увеличив число мест для сидения до 200 и обеспечив более благоприятное и функциональное пространство для деятельности. Для обеспечения места для подготовки и вспомогательного помещения был также занижен и перепланирован цокольный этаж. Кроме того, в тесном сотрудничестве с органистом был разработан дизайн нового органа, который вписывается в обновленный интерьер и используется как для обучения, так и для сольных концертов.
Был реконструирован «Патричеллиь» как помещение для экспериментального театра, предназначенного, в основном, для танцев и представлений. Вместе с тем, его можно использовать и как учебное пространство. Благодаря использованию техник Доступной среды было обеспечено доступное пространство для проведения спектаклей и сохранены исторические части интерьера здания. «Патричеллиь» является студенческим театром- дает еженедельные представления. В нем созданы абсолютно доступное пространство и вспомогательные помещения для исполнителей.
В системе управления созданы система освещения для спектаклей, освещение дома и рабочих помещений, а также полностью автоматизированная система контроля за дневным светом для обеспечения абсолютной гибкости под нужды исполнителей. Освещение дома также включает в себя систему, расширяет деревянный потолок и использует его как источник освещения до и после спектаклей. Когда комната используется для обучения, автоматизированные жалюзи открываются, чтобы пропускать солнечный свет.
Новый павильон «Zelnick» способствует лучшему использованию среды и пространства для посетителей за счет увеличения площади зала и уменьшения влияния механического шума на акустику помещения. Также он служит вестибюлем, доступным надземным входом и выходом для обеих зданий и местом размещения систем обслуживания здания под землей.
Общая стоимость проекта составила 23 млн. Долл. был закончен в 2006 году.
Доступная среда: опыт пользователей
Участие пользователей в разработке программного и строительного дизайна было значительным и разнообразным. В обоих процессах участвовали Строительный комитет, состоящий из представителей преподавательского состава и администрации, Попечительский совет и его Комитет помощи, а также пользователи этих строительных объектов, в том числе администрация кампуса, студенческий театр, театральный факультет и университетский органист.
Было принято решение совместить исторические сооружения новой проходной здания, которая должна выполнять функции вестибюля и места для обслуживания посетителей. В ней также должен быть расположен вход, лифт и пандус, а также строительные коммуникации: системы электрики, сантехники, вентиляции и противопожарной защиты обоих исторических сооружений. Оба здания были реконструированы и оснащены для обеспечения доступности их помещений и существенного улучшения освещения и акустики.
Оценка
Главной целью было создать один вход без лестницы для двух исторических сооружений, которого никогда раньше не было. Проект достиг и превысил данную цель путем учета опыта всех пользователей, предоставил гибкий выбор при планировании помещений, освещения и акустики. Проект был разработан в соответствии с Требованиями о доступности штата Коннектикут и Закона США о людях с инвалидностью.
Целью проекта было создать пространство, которым мог бы пользоваться любой благодаря его гибкой функциональности. Команда дизайнеров обновила исторический центр кампуса, превратив его в популярное место проведения театральных и музыкальных спектаклей, богослужений и университетских лекций. «Роберт Ольсон и партнеры» также увеличили емкость и функциональность университетской мемориальной часовни, установленной в память о Гражданской войне, для новых возможностей использования. Оба исторических сооружения были в запущенном состоянии, для их повторного использования необходимо было провести полную внешнюю реставрацию. Также они не имели соответствующих входов / выходов, эффективной системы безопасности, возможности разместить посетителей, систем отопления и вентиляции или подключения к электричеству. В обоих сооружениях был проведены впечатляющие мероприятия по обновлению, чтобы удовлетворить новое поколение пользователей и потребности университета.
Элементы Доступной среды
- Гибкая возможность пользования в течение всего процесса реконструкции
- Универсально спроектированное место для молитв
- Единственный вход в оба исторических сооружений через павильон «Zelnick»
- Гибкая система освещения, может варьироваться в зависимости от цели
- Хорошее состояние акустики, в том числе, изоляция от бытовых шумов
- Хотя и не в рамках данного проекта, но Уэслианский университет разместил на своем сайте подробную карту кампуса, которая предоставляет всем, кто имеет ограничения движения, ознакомиться с местностью до приезда
Элементы экологической устойчивости
- Адаптивное повторное использование исторических сооружений
- Крыша стеклянного павильона, который расположен между северной и южной зданием, спроектирована с обвесами, чтобы свести к минимуму нагрев, обеспечить ее прозрачность.
Подробная информация о проекте
награды
Награда региона Новая Англия «За лучший дизайн»
(AIA New England Merit Award) 2007
Опыт сотрудников нашей компании позволяет правильно оценить потребности, подобрать оборудование по программе Доступная среда и разработать проект по Доступной среде, дать рекомендации, проконсультировать, ответить на Ваши вопросы. Мы проектируем и реализовываем комплексные решения с учетом разумной стоимости и безопасности, учитывая все Ваши пожелания и требования, в соответствии с ГОСТом и СанПиНом










